Gemütliche Dachgeschosswohnung mit Charme
04328 Leipzig, Dachgeschosswohnung zur Miete
Kontaktdaten
-
NameTeam Raumgefühl Immobilien Frau Mandy Müller
Immobilienmakler -
FirmaRaumgefühl Immobilien GbR Sandy Rötzsch und Mandy Müller
-
AdresseSabinenstraße 1
04319 Leipzig -
Tel.
-
Fax+49 341 33 20 77 36
Objektdaten
-
Objekt-IDWHG-RH-42
-
ObjekttypenDachgeschosswohnung, Wohnung
-
Adresse04328 Leipzig
(Paunsdorf)
Sachsen -
Etage4
-
Etagen im Haus4
-
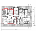
Wohnfläche ca.48 m²
-
Zimmer2
-
Schlafzimmer1
-
Badezimmer1
-
HeizungsartZentralheizung
-
Wesentlicher EnergieträgerFernwärme
-
Baujahr1927
-
Letzte Modernisierung2025
-
Zustandgepflegt
-
AusstattungStandard
-
Kaution2 Kaltmieten
-
Kaltmiete360,00 EUR
-
Nebenkosten96,00 EUR
-
Heizkosten72,00 EUR
-
Warmmiete528,00 EUR
Ausstattung / Merkmale
- ✓ Abstellraum
- ✓ Badewanne
- ✓ Fliesenboden
- ✓ Keller
- ✓ Laminatboden
- ✓ Tageslichtbad
Energieausweis
-
EnergieausweistypVerbrauchsausweis
-
Ausstellungsdatum05.12.2017
-
Gültig bis05.12.2027
-
GebäudeartWohngebäude
-
Baujahr1927
-
PrimärenergieträgerFernwärme
-
Endenergieverbrauch96,60 kWh/(m²·a)
Objektbeschreibung
Beschreibung
Zur Vermietung steht eine charmante Dachgeschosswohnung, in einer sehr gut angebundenen Wohnlage von Leipzig.
Die gutgeschnittene 2-Raumwohnung umfasst eine Wohnfläche von ca. 48 m². Sie besitzt ein geräumiges Tageslichtbad, in dem sich eine Wanne und der Waschmaschinenanschluss befindet. Ein gemütliches Schlafzimmer, ein großer offener Wohn- und Küchenbereich, runden das angenehme Wohnambiente ab.
Des Weiteren steht ein eigener Kellerabteil dem neuen Mieter zur Verfügung.
Besichtigungstermine können telefonisch abgesprochen werden.
Ausstattung
- Tageslichtbad mit Wanne
- Abstellraum in der Wohnung
- Keller
Sonstiges
Dieses Objekt wurde bereits durch einen unserer Baufinanzierungspartner geprüft.
Sichern Sie sich günstige Konditionen und eine umfassende Begleitung Ihrer Finanzierung.
Gern unterbreiten wir in einem kostenfreien Gespräch einen individuellen Finanzierungsvorschlag.
ANMERKUNGEN HAFTUNG
Die von uns gemachten Angaben haben wir nach bestem Wissen und Gewissen nach Informationen des Verkäufers und den uns übergebenen Unterlagen zusammengestellt. Eine Gewähr für diese Angaben können wir nicht übernehmen. Wichtige Zahlen und Informationen sind am Objekt zu überprüfen. Ein Zwischenverkauf bleibt vorbehalten.
GELDWÄSCHE
Raumgefühl Immobilien ist nach § 2 Abs.1 Nr.14 und § 10 Abs. 3 GwG (Geldwäschegesetz) dazu verpflichtet, bei der Begründung einer Geschäftsbeziehung die Identität des Vertragspartners festzustellen und zu überprüfen. Hierzu ist es auch erforderlich, dass wir nach § 11 GwG die relevanten Daten Ihres Personalausweises und bei einer juristischen Person die des Handelsregisterauszugs -beispielsweise mittels einer Kopie- festhalten.
Das Geldwäschegesetz sieht es vor, dass der Makler die Unterlagen fünf Jahre aufbewahren muss.
PROVISIONSHINWEIS
Mit der Anfrage über Raumgefühl Immobilien GbR und der Inanspruchnahme Ihrer Dienstleistung, wird ein Maklervertrag geschlossen. Sofern es durch die Tätigkeit von Raumgefühl-Immobilien zu einem wirksamen Hauptvertrag mit der Eigentümerseite kommt, hat der Interessent bei Abschluss eines Kaufvertrags die ausgewiesene Maklerprovision an Raumgefühl Immobilien GbR nach Rechnungsstellung zu zahlen. Wir haben einen provisionspflichtigen Maklervertrag in gleicher Höhe mit dem Verkäufer abgeschlossen, § 656 c BGB.
UNSER SERVICE
Planen Sie den Verkauf Ihrer Immobilie, so ist es wichtig deren Marktwert zu kennen.
Lassen Sie kostenfrei und unverbindlich den aktuellen Wert Ihrer Immobilie durch einen unserer Immobilienspezialisten einschätzen. Sprechen Sie uns an und wir stehen Ihnen beratend zur Seite.
Lage
„Der Osten ist am Kommen“ – im Leipziger Osten liegt Paunsdorf und wird unterteilt in Alt-Paunsdorf und Neu-Paunsdorf. Eine Mischung aus Gewerbe, Wohnlage und guter Infrastruktur macht Alt-Paunsdorf so einzigartig und erstreckt sich vom Paunsdorf Center im Osten, welches an Sommerfeld/ Engelsdorf grenzt, bis zur Eisenbahnunterführung im Westen, welche sich an Sellerhausen anbindet, sowie von den Eisbahnschienen im Süden die an Stünz und Engelsdorf angrenzen, bis zur B6 im Norden wo der gleichnamige Stadtteil Neu Paunsdorf kommt.
VERKEHR
Von Alt-Paunsdorf hat man eine sehr gute überregionale Anbindung zur A14, A38 und zur A9. Das Paunsdorf Center mit über 180 Geschäften erreicht man in 3 Minuten mit dem Auto. Die Innenstadt ist mit dem Auto oder der Straßenbahn in 20 Minuten zu erreichen. Es gibt eine direkte Anbindung an das Straßenbahn-, Bus- und S-Bahnnetz, diese sind alle fußläufig erreichbar.
FREIZEIT
Zudem gibt es in Alt-Paunsdorf viele Freizeitangebote, unter anderem die sehr beliebte Sachsen Therme, den Sportpark, sowie noch viele weitere Freizeitmöglichkeiten.
BILDUNGEINRICHTUNGEN
In unmittelbarer Nähe befinden sich, Grundschulen, Kitas, Oberschulen, Berufsschulen und Gynasien, welche auch fußläufig erreicht werden können.
VERSORGUNGSMÖGLICHKEITEN
Ärztehäuser, Supermärkte, Banken, Tankstellen sind bequem erreichbar.
Die dargestellte Position der Immobilie ist nur eine ungefähre Angabe.






