vermietete 2-Raumwohnung in der Nähe vom Stünzer Park in Leipzig
04318 Leipzig, Etagenwohnung zum Kauf
Kontaktdaten
-
NameTeam Raumgefühl Immobilien Frau Mandy Müller
Immobilienmakler -
FirmaRaumgefühl Immobilien GbR Sandy Rötzsch und Mandy Müller
-
AdresseSabinenstraße 1
04319 Leipzig -
Tel.
-
Fax+49 341 33 20 77 36
Objektdaten
-
Objekt-IDETW-RH-61
-
ObjekttypenEtagenwohnung, Wohnung
-
Adresse04318 Leipzig
(Stadtbezirk Leipzig Ost - 23 Sellerhausen-Stünz)
Sachsen -
Etage3
-
Etagen im Haus5
-
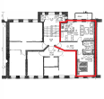
Wohnfläche ca.55 m²
-
Balkon-/Terrassenfläche ca.5 m²
-
Zimmer2
-
Schlafzimmer1
-
Badezimmer1
-
Balkone1
-
HeizungsartZentralheizung
-
Wesentlicher EnergieträgerGas
-
Baujahr1910
-
Letzte Modernisierung2012
-
Zustandgepflegt
-
AusstattungStandard
-
Statusvermietet
-
Käuferprovision5,95 % vom notariell beglaubigten Kaufpreis zzgl. MwSt.
Mit der Anfrage über Raumgefühl Immobilien GbR und der Inanspruchnahme Ihrer Dienstleistung, wird ein Maklervertrag geschlossen. Sofern es durch die Tätigkeit von Raumgefühl Immobilien zu einem wirksamen Hauptvertrag mit der Eigentümerseite kommt, hat der Interessent bei Abschluss eines Kaufvertrags die ausgewiesene Maklerprovision an Raumgefühl Immobilien GbR nach Rechnungsstellung zu zahlen. Wir haben keinen provisionspflichtigen Maklervertrag mit dem Verkäufer geschlossen, da dieser über unseren Kooperationspartner einen Vertrag geschlossen hat. Es handelt sich daher nicht um ein Teilungsgeschäft nach § 656c und § 656d nach BGB. -
Hausgeld256,00 EUR
-
Kaltmiete383,35 EUR
-
Kaufpreis125.000 EUR
-
Nebenkosten149,00 EUR
-
Warmmiete532,35 EUR
Ausstattung / Merkmale
- ✓ Abstellraum
- ✓ Badewanne
- ✓ Balkon
- ✓ Denkmalgeschützt
- ✓ Fliesenboden
- ✓ Keller
- ✓ Laminatboden
Energieausweis
-
EnergieausweistypVerbrauchsausweis
-
Ausstellungsdatum19.12.2017
-
Gültig bis19.12.2027
-
GebäudeartWohngebäude
-
Baujahr1910
-
PrimärenergieträgerGas
-
Endenergieverbrauch86,70 kWh/(m²·a)
-
Warmwasser enthaltenja
-
EnergieeffizienzklasseC
Objektbeschreibung
Beschreibung
Diese 2-Raum Wohnung befindet sich in einem Denkmalgeschützten und familienfreundlichen Mehrfamilienhaus in der Nähe vom Stünzer Park.
Die Wohnung verfügt über ca. 55 m², die sich auf ein Schlafzimmer, ein Badezimmer mit Wanne und Waschmaschinenanschluss sowie eine abschließbare Küche und ein großes Wohnzimmer mit direkten Zugang zum Balkon der zu Entspannung einlädt.
Des Weiteren gehört zur Wohnung eine Abstellkammer sowie ein Kellerabteil.
Die Wohnung ist seit dem 11.07.2016 vermietet und erzielt ab Januar 2026 einen jährlichen Mietzins von 4600,20 Euro.
Ausstattung
- Balkon
- Abstellraum
- Keller
Sonstiges
Dieses Objekt wurde bereits durch einen unserer Baufinanzierungspartner geprüft. Sichern Sie sich günstige Konditionen und eine umfassende Begleitung Ihrer Finanzierung.
Gern unterbreiten wir in einem kostenfreien Gespräch einen individuellen Finanzierungsvorschlag.
ANMERKUNGEN HAFTUNG
Die von uns gemachten Angaben haben wir nach bestem Wissen und Gewissen nach Informationen des Verkäufers und den uns übergebenen Unterlagen zusammengestellt. Eine Gewähr für diese Angaben können wir nicht übernehmen. Wichtige Zahlen und Informationen sind am Objekt zu überprüfen. Ein Zwischenverkauf bleibt vorbehalten.
GELDWÄSCHE
Raumgefühl Immobilien GbR ist nach § 2 Abs.1 Nr.14 und § 10 Abs. 3 GwG (Geldwäschegesetz) dazu verpflichtet, bei der Begründung einer Geschäftsbeziehung die Identität des Vertragspartners festzustellen und zu überprüfen. Hierzu ist es auch erforderlich, dass wir nach § 11 GwG die relevanten Daten Ihres Personalausweises und bei einer juristischen Person die des Handelsregisterauszugs -beispielsweise mittels einer Kopie- festhalten.
Das Geldwäschegesetz sieht es vor, dass der Makler die Unterlagen fünf Jahre aufbewahren muss.
UNSER SERVICE
Planen Sie den Verkauf Ihrer Immobilie, so ist es wichtig deren Marktwert zu kennen.
Lassen Sie kostenfrei und unverbindlich den aktuellen Wert Ihrer Immobilie durch einen unserer Immobilienspezialisten einschätzen. Sprechen Sie uns an und wir stehen Ihnen beratend zur Seite.
Lage
„Der Osten ist am Kommen“ – im Leipziger Osten liegt Sellerhausen-Stünz.
Sellerhausen-Stünz ist ein Stadtteil von Leipzig und liegt etwa 3 km östlich des Stadtzentrums. Des Weiteren glänzt der Stadtteil mit seiner Vielfältigkeit, der bekannten Emmauskirche und seinem einzigartigen Flair.
VERKEHR
Der Stadtteil, ist durch die Straßenbahnlinien 7 und 8, mit dem Stadtzentrum, mit dem Westen, sowie mit dem Osten von Leipzig verbunden. Auch die Hauptbuslinie 90 fährt durch Sellerhausen und verbindet den Nord-Osten mit dem Nord-Westen.
Die Regionalbahn Haltestelle ist fußläufig. Diese verbindet Sie in wenigen Minuten mit dem Leipziger Hauptbahnhof.
Dank der B6 im Norden des Stadtteils, kommen Sie schnell zur A14 sowie ins Leipziger Umland. Die Riesaer Straße bringt Sie mit dem Auto bequem in die Innenstadt und auch in das beliebte Einkaufszentrum Paunsdorf-Center. Diese Ziele erreichen Sie in wenigen Minuten.
EINKAUFS- und FREIZEITMÖGLICHKEITEN
Vielfältige Einkaufsmöglichkeiten, unter anderem ein neuer Supermarkt direkt gegenüber und Dienstleister wie ein Friseur, Autohaus, Hotels und noch vieles mehr sind schnell und zu Fuß zu erreichbar. Der Stünzer Teich im Volkshain Stünzer Park und der Kleingartenpark lädt zum Verweilen ein nach einem stressigen Arbeitstag.
BILDUNGSMÖGLICHKEITEN
Sellerhausen bietet neben einigen Kindertagesstätten und einer Grundschule sowie ein Gymnasium noch weitere Bildungsangebote.
Flughafen 24,99 km | Fernbahnhof 640 m | Bus 140 m
Die dargestellte Position der Immobilie ist nur eine ungefähre Angabe.









